
Transforming That ’70s Show Bathroom to an Organic Spa


Before After
Inspiration: Resort
Before
My friend and her husband moved into this home five years ago. They had issues with the bathroom—the showerhead didn’t function properly, and the lighting was poor. The sunken tub was strangely impractical. The brown tile that screamed That ’70s Show had to go.
“Mike, I hate my bathroom!”
– Homeowner





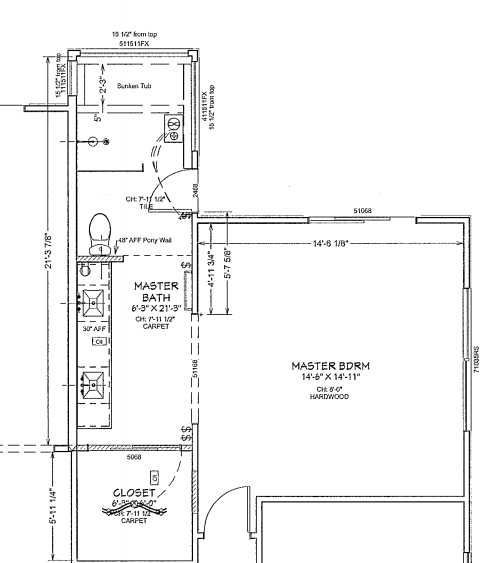
Planning
My first conversation with my friend and former co-worker was to understand what was not working for them. She said, “Ever since I bought this home, I hated the master bathroom. It is just weird. Help me make it not weird.” We scheduled a planning meeting with the interior design team, Lisa and Gemma of C&C Designs.
“Our client wanted something that reminded her of a resort—the sort of stylish, restorative place they’d go before they had children.”
– Michael Mok, Bridges MR
My friends wanted to:
- Create privacy with a water closet and close off the master bath from the master bedroom.
- Even out the light distribution into the vanity area.
- Separate the master closet so they could access it from the bedroom without going into the bathroom.
- Increase the functional space of the shower area by removing the sunken tub.
- Create an updated design.


Every detail was laid out on the drawings so everyone knew the full plan.
During
Demolition: Like every project we have been on in the Bay Area, subterranean termites had moved in. This project also had some foundational cracks, which we addressed with our structural engineer.




Long-Lasting Waterproofing: We waterproof with the best products in the industry. In this case, we used Schluter®-Kerdi’s membrane product (the orange material in the photos below). For more information, click here. It is a polyethylene waterproofing membrane and vapor retardant used to prevent water from getting into the wood. This will prevent wood rot and mold growth.



Problem-Solving
No remodel goes without creative troubleshooting to resolve previously hidden problems that arise. Below are three pictures of typical issues we encountered during this project.
- Left: Exposed foundation. We repaired it with the help of our structural engineer, Marcus, by getting a structural letter along with the recommended fixes.
- Center: The cabinets were damaged during shipping. Our great cabinet partner, Signature Kitchen & Bath of San Jose, helped us get a replacement door from the manufacturer.
- Right: Faulty shower control. Once in a while, we encounter a defective product. The Plumbery of Redwood City helped us trouble-shoot the problem and exchange the defective control.



After




Summary
This project took about four months to complete; COVID-19 shutdowns in San Jose caused delays. When we were finished, though, we had the opportunity be the one of the first companies to experience video-based inspections from the city of San Jose. At the end, my friends are now able to enjoy their fully functional bathroom, which is modern and bright and allows them to rejuvenate in resort style.
Review from Houzz:
Partners:
- Interior Design Team: C&C Designs
- Structural Engineering: Marcus Yan, Inc.
- Vanity: Signature Kitchen & Bath in San Jose by Saratoga
- Countertop: Carmel Stones – Silestone
- Tiles: Tileshop in San Jose
- Plumbing Fixtures: The Plumbery, Redwood City
- Photo Credit: Caroline Tudor










Leave a comment